This project was for a developer who builds luxury homes - we were given a clear brief of how they wanted the space laid out and the overall ‘vibe’ they were going for - minimalist, scandi, japandi, with black modern appliances.

Their space was unusually tall, which meant we worked with a local cabinet manufacturer who could make 2.6m tall units for that sleek minimalist style.

We supplied swatches, put together the quote and renders, and visited site. Less than 90 minutes of the developer’s time was taken up in total and they ended up with a luxury kitchen at an affordable price.

Integrated lighting, curves and a limited colour pallette gives this kitchen a high end feel, perfect for their home buyer.

One of our skilled and trustworthy joiners fitted the kitchen and then returned for finishing touches once the flooring was laid.

Stocksfield

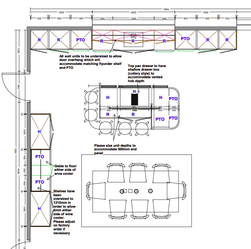
This is what we provided the developer alongside their quote. Below you can see the completed kitchen and how accurate these were!

Design

We visited site after the joinery was completed, and then again once the worktops and floors were fitted. It looks a lot more expensive than it was!

Completed kitchen

Rightmove listing

Previous
Previous

Longbenton

Next
Next

Wideopen